In Bengaluru, Vista by Atelier Design N Domain LLP is conceived as a calm, contemporary residence where spatial clarity, material restraint and carefully framed views shape everyday living.
Curated by: Rupali Sebastian
Photographs: Sebastian Zachariah + Jacob Nedumchira I PHX India



The project
Vista is a private residence in Bengaluru designed as a quiet, light-filled home that prioritises openness, proportion and visual continuity. Designed by Atelier Design N Domain LLP, the house is conceived around the idea of living with views—both outward, towards the landscape beyond, and inward, across interconnected spaces. Rather than relying on expressive gestures, the architecture focuses on restraint, allowing form, light and material to establish a calm and enduring character.


The site
Set within a residential neighbourhood of Bengaluru, the site offered the opportunity to orient the house around light and outlook. The surrounding context informed a layout that privileges long views and controlled openness, while ensuring privacy from neighbouring plots. The planning responds sensitively to the site’s scale, allowing the built form to sit comfortably within its environment.


The brief
The clients envisioned a contemporary home that felt uncluttered, airy and closely connected to its surroundings. Comfort and functionality were key, but without visual excess. They sought spaces that could adapt to daily routines while remaining visually composed, with an emphasis on natural light, ventilation and a neutral material language.


The design intent
The design intent was to create a residence where spatial flow and visual calm take precedence over formal display. At Atelier Design N Domain LLP, the approach centres on clarity—of movement, proportion and material expression—allowing spaces to unfold gently rather than assert themselves. The house is planned as a sequence of connected volumes, where openness replaces rigid boundaries and light becomes the primary organising element. As principal architect Shobhan Kothari explains, the idea was to shape “a sequence of calm, connected spaces, where light and proportion guide movement rather than walls.” The result is an interior language that feels intuitive, unforced and quietly composed.

The civil intervention
Structural interventions were guided by the desire to enhance openness and connectivity. Walls were strategically positioned to frame views while maintaining privacy, and openings were calibrated to allow daylight to penetrate deep into the interiors. These measured interventions support fluid circulation while preserving the home’s sense of enclosure and comfort.


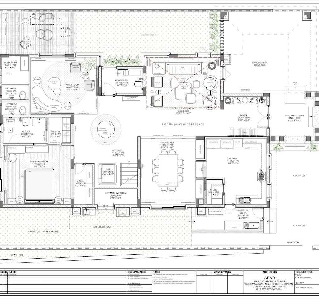
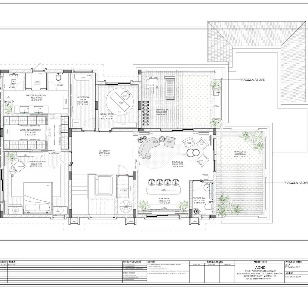
The spatial flow
The house unfolds through a measured spatial sequence. Entry leads into the primary living areas, which are visually linked yet clearly zoned. Living, dining and family spaces flow into one another, connected by consistent material cues and long sightlines. Bedrooms are positioned to enjoy privacy while remaining connected to shared spaces through light and proportion. Circulation is intuitive and unforced, encouraging movement without interruption.



The material palette
Material choices are deliberately restrained, allowing texture and daylight to take on a more active role. Stone and wood form the primary surfaces, supported by muted wall finishes and finely detailed joinery that lend warmth without visual weight. Large glazed openings dissolve the boundary between inside and out, making views and changing light part of the interior experience. This disciplined approach to materials was intentional. As principal architect Anand Menon notes, restraint allowed the architecture to rely less on finishes and more on atmosphere—“by limiting the material palette, we allowed texture, light and views to become the defining elements of the home.” Together, these decisions give Vista its sense of quiet continuity and depth.


The challenges
Balancing openness with privacy was a key challenge. The design had to allow expansive views and generous daylight while ensuring comfort and seclusion within a residential setting. Achieving this balance required precise calibration of openings, levels and spatial transitions.



The highlights
The home’s ability to frame views from multiple vantage points stands out as a defining feature. The seamless flow between spaces, combined with a consistent material language, creates an atmosphere of ease and continuity. Subtle detailing and carefully proportioned volumes elevate everyday living without drawing attention to themselves.

The takeaway
Vista demonstrates how restraint can be a powerful architectural tool. By focusing on clarity, light and proportion, the project shows that contemporary residential design can be both understated and deeply considered—creating a home that feels calm, adaptable and enduring.
Fact file
Project: Vista
Design firm: Atelier Design N Domain LLP
Location: Bengaluru, Karnataka
Principal architects: Ar. Shobhan Kothari and Ar. Anand Menon
Design team: Hemali Shah, Sharvari Sawant

















Add a Comment